Однокомнатная квартира 38,30 м2 по ул. Всеволожский район городской поселок Дубровка, Невская улица,2 за 6173100 руб.

Однокомнатная квартира по ул. Всеволожский район, городской поселок Дубровка, Невская улица,2 в Санкт-Петербурге
Цена 6 173 100 р. (161 178 р./м2)
Подать заявку на ипотеку
Адрес Всеволожский район, городской поселок Дубровка, Невская улица,2
Этаж 5/5
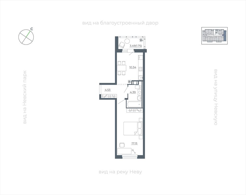
Площадь общая 38,3 м2, жилая 17,1 м2, кухни 10,2 м2
Кол-во комнат Однокомнатная
Продается 1-комн. квартира, площадью 38.3 м2 в малоэтажной в монолитно-кирпичной новостройке. Возможен вариант покупки с использованием ипотечных средств, возможна покупка с использованием материнского капитала, есть военная ипотека. Жилая площадь 17.1 м2, кухня 10.2 м2, чистовая отделка. Предчистовая отделка, чистовая отделка., окна выходят во двор и на улицу. Квартира располагается на 5 этаже 5-этажного дома в ЖК Невский берег. Застройщик - ООО “СЗ Ленжилстрой 47”, сдача дома - III квартал 2024 года, дом уже сдан, высота потолков 2.72 м, закрытая территория. Парковка автомобилей - наземная. Обеспечение безопасности: видеонаблюдение, круглосуточная охрана, консьерж, противопожарная система. Инфраструктура: школа, детский сад, поликлиника, детские площадки, спортивные площадки, места для отдыха, супермаркет, рестораны, фитнес-центр, пункты бытового обслуживания. Жилой комплекс "Невский берег" - это современное место для жизни, расположенное на живописном берегу реки Невы. Всего в минуте ходьбы находится собственный пляж, где можно насладиться свежим воздухом и красивыми видами. Территория комплекса продумана до мелочей: закрытый двор без автомобилей, для детей оборудована современная игровая площадка, а любителей активного образа жизни порадует наличие фитнес-зоны п.г.т. Дубровка Ленинградская область Всеволожский район. До Санкт-Петербурга: 20 минут на авто, 35 минут на маршрутке К-801, 90 минут на электричке( Финляндский вокзал) Аккредитованные банки: ПАО Сбербанк лицензия 1481 от 11.08.2015, и пр. основные Банки Позвоните и узнайте условия покупки прямо сейчас!
Описание дома
Этажность дома 5
Объявление № 22079333
Дата подачи:
4 мая 2025 г. 23:20
Дата обновления:
4 мая 2025 г. 22:42
Просмотров 19 Хотите продать быстрее?

Продавец
Отдел продаж
Показать номер телефона
Пожаловаться
Комментарии:
Добавить